HOME
会社案内
お問い合せについて
MENU
HOME
会社案内
お問い合せについて
閉じる
FOR SALE
日当り良好! ゆめマートまで約900m
売中古住宅
熊本県熊本市中央区出水6丁目
価格
2,200
万円
最寄り交通機関
白山神社前バス停徒歩13分
所在地
熊本県熊本市中央区出水6丁目
土地面積
178.63m
2
(54.03坪)
建物面積
100.17m
2
(30.3坪)
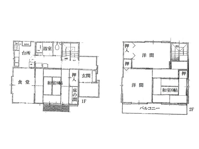
間取り
5K
構造/階数
木造スレート葺2階建
築年月
昭和51年11月新築
学校区
出水南小(950m)・出水中(800m)校区
接面道路
南側幅員約6m私道 接面約3m
引き渡し
相談
取引態様
仲介
備考・コメント
☆出水南小(950m)・出水中(800m)校区
☆ゆめマートまで約900m
☆南熊本駅まで約1.7㎞