HOME
会社案内
お問い合せについて
MENU
HOME
会社案内
お問い合せについて
閉じる
FOR SALE
閑静な住宅街
売中古住宅
熊本県上益城郡益城町広崎
価格
1,500
万円
最寄り交通機関
小楠公園前バス停徒歩14分
所在地
熊本県上益城郡益城町広崎
土地面積
151.7m
2
(45.88坪)
建物面積
111.78m
2
(33.81坪)
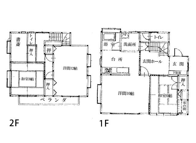
間取り
3SLDK
構造/階数
木造セメント瓦葺2階建
築年月
平成4年1月築
学校区
広安西小・益城中校区
接面道路
北側幅員約4m、西側幅員約4m
引き渡し
相談
取引態様
仲介
備考・コメント
・益城台地東土地区画整理区域地近く(約350m)