HOME
会社案内
お問い合せについて
MENU
HOME
会社案内
お問い合せについて
閉じる
FOR SALE
ハロデイさくらの森店まで約860m
売中古住宅
熊本県上益城郡益城町広崎
価格
3,500
万円
最寄り交通機関
府内古閑バス停徒歩8分
所在地
熊本県上益城郡益城町広崎
土地面積
330.65m
2
(100.02坪)
建物面積
146m
2
(44.16坪)
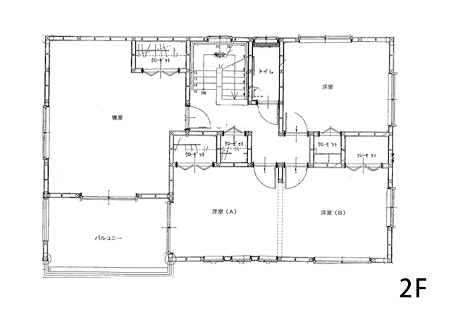
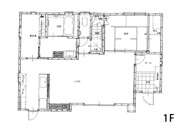
間取り
5SLDK
構造/階数
木造スレートぶき2階建
築年月
平成22年11月築
学校区
広安西小(約1.2㌔) ・益城中(約2㌔)
接面道路
南側公道 接面約18.4m
引き渡し
令和8年9月
取引態様
仲介
備考・コメント
・閑静な住宅街・南道路・日当良好
・パントリー収納・全居室収納有
・駐車場:2台駐車可